



Iti propunem spre vanzare o casa pe parter, construita integral din caramida, situata in Domnesti, intr-o zona aerisita, cu acces facil catre Bucuresti si puncte de interes din zona.
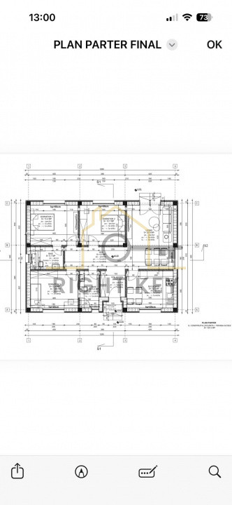
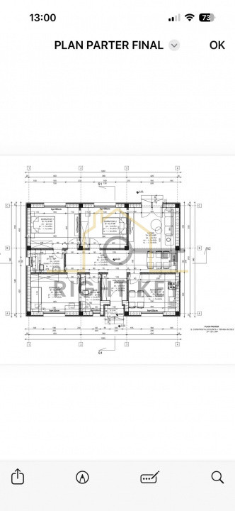
Locuinta are o suprafata utila de aproximativ 100 mp si beneficiaza de o compartimentare foarte bine gandita, fara spatii pierdute. Zona de zi este separata eficient de zona de noapte, oferind confort si intimitate.
Livingul este luminos si bine proportionat, iar bucataria inchisa ofera un spatiu practic si usor de organizat. Casa dispune de 3 dormitoare, dintre care un dormitor matrimonial, iar una dintre bai este dedicata acestuia, in timp ce cea de-a doua baie deserveste celelalte doua dormitoare.
Constructia este solida, realizata integral din caramida si cu placa de beton, oferind durabilitate si un confort termic foarte bun. Locuinta este dotata cu incalzire prin pardoseala si centrala proprie pe gaz.
Proprietatea beneficiaza de utilitati: curent, gaz si apa, iar sistemul de canalizare este realizat prin fosa ecologica cu drenaj, cu posibilitate de racordare la reteaua publica aflata in apropiere.
Terenul este amenajat, cu curte pavata si terasa deja construita, oferind un spatiu ideal pentru relaxare sau petrecerea timpului in aer liber. In plus, podul poate fi folosit ca spatiu de depozitare.
Pretul este de 165.000 euro, TVA inclus, cu comision 0% pentru cumparator. Casa se vinde atat prin plata cash, cat si prin credit ipotecar, iar noi iti oferim consultanta gratuita pentru obtinerea acestuia.
Este o alegere potrivita pentru cei care cauta o casa pe un singur nivel, bine compartimentata, usor de locuit si eficienta, intr-o zona linistita, dar cu acces rapid catre oras. Daca vrei o locuinta practica, fara compromisuri majore, merita vazuta.