



Casa visurilor tale in Joita – Oportunitate unica, comision 0% pentru cumparator!
Daca iti doresti un loc linistit, aproape de Bucuresti, unde sa te simti acasa in fiecare zi, aceasta casa din Joita este exact ce cauti. Imobilul este situat intr-o locatie centrala, in apropierea tuturor facilitatilor de care ai nevoie – scoala, gradinita, magazine, restaurante si mijloace de transport in comun. Iar internetul prin fibra optica este deja disponibil, pentru ca tu sa fii mereu conectat, zona cu acces rapid catre A0, A1 si Soseaua de Centura.
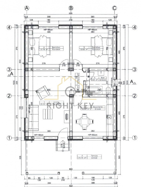
Casa, cu o suprafata utila de 85 mp si o suprafata construita de 105 mp, este pregatita sa devina caminul tau. Cu un teren de 300 mp si o deschidere generoasa de 17 m, iti vei putea amenaja gradina asa cum ai visat. Camerele sunt spatioase si luminoase, iar compartimentarea iti va oferi confortul de care ai nevoie.
In interior vei gasi doua dormitoare confortabile (12,78 mp si 12,60 mp), un living generos (21,35 mp) in care te vei relaxa dupa o zi lunga, o bucatarie de 12,60 mp unde sa pregatesti mese delicioase si o baie moderna (5,14 mp). Nu in ultimul rand, terasa de 20 mp iti va oferi locul perfect pentru a petrece timpul liber, iar podul de depozitare poate fi transformat intr-un spatiu suplimentar, daca iti doresti.
Casa beneficiaza de toate utilitatile necesare: gaz, curent, apa (put propriu) si fosa septica, iar izolatia cu polistiren de 10 cm EPS 80 iti va asigura confortul termic pe tot parcursul anului. Acoperisul din tabla Wetterbest si tamplaria Tripan Salamander aduc un plus de calitate si durabilitate.
Iar daca iti doresti o locuinta economica si eficienta energetic, vei fi placut surprins – casa are clasa energetica A!
Poti alege finisajele interioare, in limita unui buget stabilit, astfel incat sa personalizezi fiecare colt al casei tale dupa stilul si gusturile tale. Fie ca preferi un look modern, rustic sau clasic, vei avea libertatea de a crea spatiul care ti se potriveste cel mai bine.
Pozele de prezentare provin de la o casa deja vanduta, casa este in constructie.
Pret: 105.000 € si comision 0% pentru cumparator!
Nu rata aceasta oportunitate! Fie ca iti doresti un loc in care sa te relaxezi sau sa te bucuri de timp de calitate alaturi de familie, aceasta casa este locul perfect pentru tine. Contacteaza-ne pentru mai multe detalii si pentru a programa o vizionare!